Return to MAIN-Index  Return to SUB-Index    IBM-AUSTRIA - PC-HW-Support    30 Aug 1999

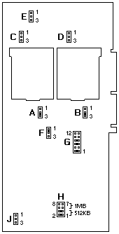
1 MB Processor Card - FRU No. 12J3352 (Netfinity 7000 - 8651)



1 MB Processor Card FRU No. 12J3352

NOTE: To remove the processor card, see 'Processor or Memory Board'.

 

See Part-Two (fullscreen)